LQZ高承载全封闭球型支座是一种新型支座,因其承载能力高、转角大、转动灵活、转动力矩与转角无关等优点,可广泛应用于各种跨度、各种类型的桥梁,特别适用于大跨度桥梁及宽桥、曲线桥、坡道桥等构造复杂的桥梁。
LQZ球型支座工作原理和构造
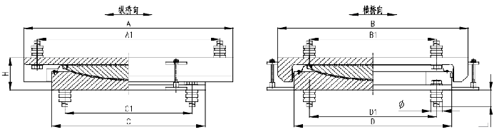
球型支座由下座板、球面四氟板、密封裙、中间座板、平面四氟板、上滑板和上座板组成。
球型支座的水平位移是由上(支座)滑板与中座板上的平面四氟板之间的滑动来实现的。另外,通过在上座板上设置导向板(槽)或导向环来约束支座的单向或多向位移,可以制成单向活动球型支座和固定球型支座。
球型支座的转角是由中座板的凸球面与下座板上的球面四氟板之间的滑动来实现的。通常由于支座的转动中心与上部结构的转动中心不复合,而在中座板和下座板之间形成第二滑动面。根据上部结构与支座转动中心的相对位置,球面转动方向可以与平滑动方向一致或相反。如果两个转动中心复合,则无平面滑动。
LQZ球型支座的特点
LQZ球型支座险具有一般球型转角大、转动灵活、转动力矩与转角无关、转动性能各个方向一致等优点外,还有以下几大特点:
1、承载吨位大-*大支反力可超过100000KN;
2、转角大(*大转角0.06)
3、耐腐蚀能力大大增强,可在海洋大气及飞溅区等恶劣环境下使用。
4、平面滑动和转动磨擦阻力小。
5、防尘防水性能好,可保证磨擦副无腐蚀无污染。
6、设计寿命长(按100年设计)
7、支座小巧轻便,较同样支反力的盆式橡胶支座重量减轻40-50%,较同样支反力的其它球座重量减轻20~25%。
LQZ球型支座的技术性能
1、支座竖向承载力分 34 级:1000、1500、2000、2500、3000、3500、4000、4500、5000、5500、6000、7000、8000、9000、10000、12500、15000、17500、20000、22500、25000、27500、30000、32500、35000、37500、40000、45000、50000、60000、70000、80000、90000、100000kN;也可根据用户要求进行特殊规格的设计、制造。
2、设计转角:0.02rad。
3、支座可承受的水平力:GD 固定支座各向、DX 单向活动支座的限位方向向,为支座设计竖向承载力的 10%。多向活动(DX)支座各向、DX 单向活动支座活动方向的设计水平力为支座竖向设计承载力的 5%。
4、支座设计位移:SX 双向活动支座和 DX 单向活动支座的顺结构方向的主位移量设计位移为±100mm 和±150mm,SX 双向活动支座的横向位移量为±40mm,DX 单向活动支座横向位移限值为±3mm。当所需位移量不同时,可进行特殊设计;
5、活动支座设计摩擦系数:常温(-25℃~60℃)低温(-40℃~-25℃)μ≤0.03 μ≤0.05
6、温度适用范围:-40℃~+60℃
7、支座使用环境:支座根据使用环境可分为普通型(适用于一般大气环境)和耐蚀型(适用于海洋大气环境及重度污染大气环境),耐蚀型支座需在型号 LQZ 后加注(NS)以做标识。
8、对于有坡度要求的梁体,预制梁桥采用在支座上座板顶面设置楔形板的方式以适应梁体的坡度要求;现浇梁桥的坡度由梁底混凝土调整,支座本体不设坡度。
LQZ球型支座代号

例:支座型号 LQZ-5000DX-100
本例表示设计竖向承载力为 5000kN,水平力为竖向承载力的 10%,顺桥向设计位移为±100mm 的纵向活动球型支座。
LQZ 系列球型支座结构型式及规格系列
LQZ 型双向活动球型支座

LQZ 型单向活动球型支座

LQZ 型固定球型支座



电话:0318-6825352 手机:13503185352 13363335352 联系人:王经理 